Privātmāja Natural
Privātmāja Natural
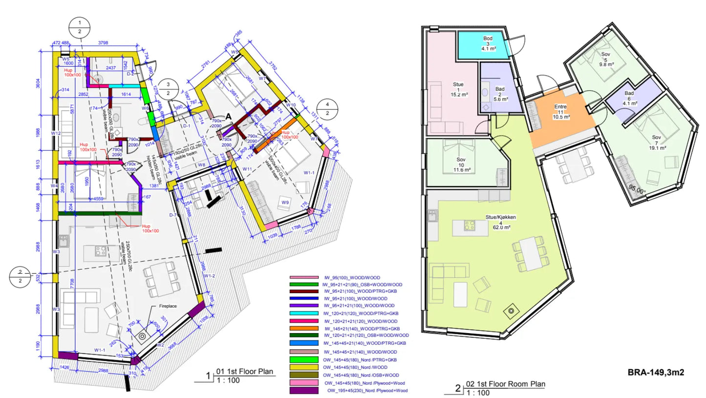
Privātmāja Natural ir plaša 149.3 m² māja ar lieliem logiem, kas nodrošina optimālu dabisko apgaismojumu un augstu energoefektivitāti. Projektam var pielāgot plānojumu, lai tas atbilstu jūsu dzīvesstilam, vienlaikus saglabājot elegantu un izsmalcinātu izskatu. Kopējā projekta apbūves platība, ieskaitot terasi, ir 229 m², kas nodrošinās izteiktu plašuma sajūtu.
Vai mājai ir garantija?
Vai mājai ir garantija?
Jā, katrai mūsu būvētajai mājai ir 10 gadu garantija būvkonstrukcijai un ārējai fasādei.
Cik ilgs ir būvniecības laiks?
Cik ilgs ir būvniecības laiks?
Atkarībā no rindas, māju paneļi tiek saražoti dažu nedēļu laikā. Kopējais process parasti aizņem 3-4 mēnešus, iekļaujot projektēšanu, saskaņošanu un pašus būvniecības darbus.
Vai māju ir iespējams pielāgot?
Vai māju ir iespējams pielāgot?
Jā, katram klientam ir iespēja mājas plānojumu un apdares materiālus pielāgot savām vēlmēm. Šādos gadījumos vislabāk ir pieteikt konsultāciju ofisā, lai kopīgi rastu labāko risinājumu.
Man jau ir izveidots savs projekts, vai Jūs to varat uzbūvēt?
Man jau ir izveidots savs projekts, vai Jūs to varat uzbūvēt?
Jā, mēs strādājam arī ar individuāliem projektiem. Sazinieties ar mums, un mēs sagatavosim piedāvājumu Jūsu projektam.

Izvēlieties vēlamo komplektāciju
-
Rūpnīcas Komplekts
Piesakieties Konsultācijai(Pelēkā apdare)
Cena (bez PVN)
249 000 €
Cenā Iekļauts:
✓ Siltināts karkass (300mm - sienās, 350mm - griestos)
✓ Jumts, logi un ārdurvis✓ Ārējā apdare
✓ Kanalizācija, elektroinstalācija
✓ Iekšējā apdare līdz reģipsim
✓ Pamati✓ Saskaņošana būvvaldē
✓ Piegāde un Montāža
-
Pilnā Komplektācija
Piesakieties Konsultācijai(Pilna iekšējā apdare)
Cena (bez PVN)
298 500 €
Cenā Iekļauts:
✓ Siltināts karkass (300mm - sienās, 350mm - griestos)
✓ Jumts, logi un ārdurvis✓ Ārējā apdare
✓ Kanalizācija, elektroinstalācija
✓ Pilna iekšējā apdare
✓ Pamati✓ Saskaņošana būvvaldē
✓ Piegāde un Montāža
SIA "ARMA"
Reģistrācijas numurs: 40203427291
PVN: LV40203427291
Juridiskā adrese: Stopiņu 14-47, Rīga, Latvija LV-1035
Kontakttālrunis: +371 26678242
Privātmāju ražotnes adrese:
"Zemzari",
Mores pagasts,
Siguldas novads,
LV-2170
Moduļu māju ražotnes adrese:
Valmieras iela 2,
Rīga,
LV-1009
Ofisa adrese:
Strēlnieku iela 5,
Rīga,
LV-1010